消防應急疏散指示系統在某健身中心項目的應用
【摘要】:消防應急照明和疏散指示系統具有集中控制,靈活性高和可靠性強等特點。系統采用17寸工業平板電腦,采用Windonws7系統,可支持聯動報警、系統監控、故障報警、自檢、備電、記錄存儲與查詢、導光流、權限控制等多項功能。配合A431N系列標志燈、A5155G系列地埋燈與壁掛式A600B系列、吸頂式A603系列、嵌頂式A631系列應急照明燈,適用于公共建筑等具有防火分區多等特點的項目。
【關鍵詞】:集中電源;集中控制;消防應急照明和疏散指示系統;A-C-A100;公共建筑
0 . 前言
隨著經濟與科技的迅猛發展,人們開始追求建筑設施的人性化、現代化,大量高層建筑、特大型建筑,及地下建筑的涌現導致建筑物通道更長、更復雜。隨著人們安全意識的提高,本著以人為本、生命安全為重的想法,對于人員密集、疏散距離長、疏散通道多、拐彎多、環境復雜的建筑,采用傳統的疏散指示方式不能及時對燈具進行維護管理,造成火災時大面積失效產生人員傷亡。為了避免造成群死群傷,實施迅速有效的應急疏散系統,集中控制型應急照明和疏散指示系統應運而生,可準確實現對各應急燈具的實時監控和控制、日常24小時管理維護,保證系統運行正常,在發生火災時準確、迅速的引導人員到達安全區域,減少人員傷亡。
1. 項目介紹
本項目是公建項目,該健身運動中心建設項目規劃面積662.8畝,總建筑面積164673平方米,包含3個地塊,其中A地塊為體育運動中心,主要建設內容為:可容納30000人的乙級體育場、6000人的甲級體育館、1500人的游泳館、地景商業、地下停車庫及室外訓練場、網球場、足球場等配套設施。B地塊為老人兒童活動場地,主要建設內容為:老年人活動中心、兒童游樂場及配套設施。C地塊是青少年活動場地,主要建設內容為:拓展訓練營地、露營營地及配套設施。要求各場所內應急疏散標志采用消防智能應急疏散指示逃生系統,當火災消防或應急發生時,可通過火災監控系統的煙感探頭等檢測到具體的火災位置,并以通信方式將指令傳輸至本系統的消防主機,以控制場所內疏散標志的箭頭指向,確保人員沿正確的方向逃生及疏散。
2. 現場項目應用產品簡介
2.1 消防應急照明和疏散指示系統
消防應急照明與疏散指示系統由控制器(主機)、集中電源和燈具(疏散指示燈具、應急照明燈具)等幾部分組成。
控制器是消防應急照明和疏散指示系統的系統主機?刂破魍ㄟ^總線網絡實時監控各個終端,可以實時上報每個設備及燈具故障。在險情發生時,自動將信息指令發布到每個終端,終端收到指令之后開始工作,如頻閃、開、滅燈等工作,實時指示安全的疏散路線。
集中電源是安裝在建筑物內的備用集中式應急電源裝置。當建筑物發生火災、事故或其他緊急情況時,應急電源可以為消防標志燈、照明燈提供應急供電,保證消防應急照明和疏散指示正常工作。
消防應急照明燈為人員疏散逃生提供照明。其安裝方式有壁掛式、吸頂式、嵌頂式。
疏散應急標志燈具為人員疏散逃生指引方向。其安裝方式有壁掛式、吊掛式、地埋式。
2.2 A-C-A100控制器
2.2.1 產品圖片及技術參數
圖1 A-C-A100產品圖片及技術參數
2.3 A-D-0.5KVA-A200FP集中電源
2.3.1 產品圖片及技術參數
圖2 A-D-0.5KVA-A200FP產品圖片及技術參數
2.4 燈具
當發生火災時,消防應急標志燈具為人員提供應急疏散的指示方向,左向、右向和雙向的標志燈具一般用于指示疏散的走向,無方向的標志燈具一般用于指示安全出口、樓層和避難間,其安裝方式為壁掛式、地埋式。消防應急照明燈具為人員疏散逃生提供照明,其安裝方式為壁掛式、嵌頂式、吸頂式。
本產品廣泛應用于機場、大型商場、寫字樓等公共場所安全通道出入口、走廊拐角處。
3 現場應用
3.1 系統組網圖
圖3 系統組網圖
3.2 現場部分系統圖
本項目采用的方案是,燈具到集中電源通常二總線用法,集中電源到琴臺控制器中間用的是CAN轉光纖再轉CAN,每個集中電源側都有個單獨的通訊轉接箱。
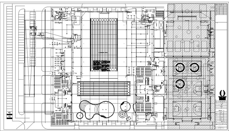
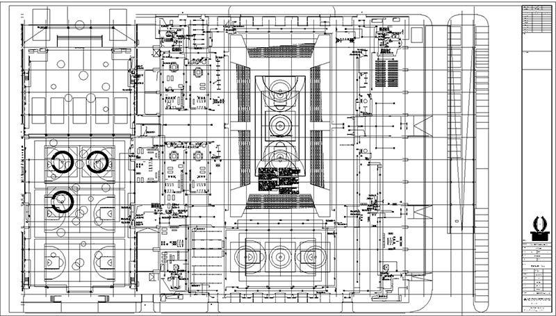
圖4 體育館A區首層
圖5 體育館B區首層
圖6 體育館C區首層
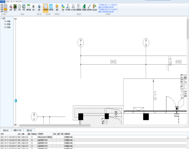
3.3 系統軟件運行界面
系統運行主界面
包含工具欄、平面展示、圖層列表、狀態欄,可以直觀的查看監控設備的運行狀態,并根據狀態欄的現實內容直接切換至故障具體位置
燈具配置界面

可以查看所有燈具狀態與數量
事件記錄界面
可查看歷史操作、故障信息,可按日期進行
3.4 設備現場應用照片
4. 結束語
隨著我國經濟的快速發展,科技的進步,建筑智能化及建筑消防的重視程度也隨之提高,本文分析了我公司生產的消防應急照明和疏散指示系統在公共建筑項目的應運,充分展現了在公共建筑的組網中簡單、靈活、穩定、低成本的優勢。通過消防應急疏散系統能夠解決傳統消防應急疏散指示系統無集中控制、指示方向固定、疏散線路不能改變、指示效果不理想、安全性能低等問題。
安科瑞電氣著力打造各類火災安防系統的產品,在滿足國家行業標準要求的前提下,為各類建筑提供智能、節能、廉價的消防方案與消防產品,為防火減災、保障人民生命財產安全方面盡一份力!
參考文獻
[1].安科瑞電氣股份有限公司產品選型手冊.2018.01
[2].GB50116-2014 建筑設計防火規范[S].
[3].GB17945-2010《消防應急照明和疏散指示系統》[S].
[4].GB51309-2018《消防應急照明和疏散指示系統技術標準》[S].




掃一掃添加微信